

一、概述
BYLBG链板式刮泥机主要用于污水处理厂中平流式沉淀池、沉砂池、隔油池的底部进行连续排泥,并可在水面连续排除油污或去除浮渣,尤其适合沉淀物较多的沉淀池。
二、结构及原理
链板式刮泥机主要由驱动装置、主动轮组、导轨及托架、刮板组合、从动轮组、链条涨紧机构、集渣管等部件组成。
链板式刮泥刮渣机运行时,由链条带动刮板在池中做连续的回转运动,将池底的污泥刮至集泥槽中,并可刮除池面的浮油或浮渣。
三、特点
1.若刮板受异物卡塞或积泥过多时,自控系统中过扭保护机构则会切断电源,自动停机报警。
2.设备运行平稳,可避免对沉淀物的扰动。
3.刮泥、刮渣装置为一体,使整机结构简单,占用空间少。
4.驱动装置固定在池边平台上,安装、维修方便。
四、 型号说明

五、外型图
1. 集油管 2. 从动轮组 3. 从动轮组 4.刮板组合 5.导轨及托架
6.涨紧轴总成7.主动轮组8.链条涨紧机构9.驱动装置


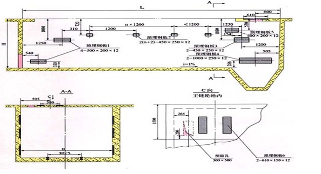
六、池型结构图
七、链板式刮泥机刮渣机技术参数:
型号 | 池宽B(mm) | 推荐池长L(mm) | 推荐池深H(mm) | 驱动功率(kw) | 刮板移动速度 | 刮板间距 | 进水浊度 |
BYLBG3*L | 3000 | 600-20000 | 3500 | 1.5-3kw | 1 | 2000 | ≤500 |
BYLBG4.5*L | 4500 | 600-20000 | 3500 | 1.5-3kw | 1 | 2000 | ≤500 |
BYLBG5*L | 5000 | 600-20000 | 3500 | 1.5-3kw | 1 | 2000 | ≤500 |
BYLBG6*L | 6000 | 600-20000 | 3500 | 1.5-3kw | 1 | 2000 | ≤500 |
Copyright © 2023 浙江久华科技有限公司 All Rights Reserved. 浙ICP备2023008649号-1 XML地图
技术支持
扫一扫咨询微信客服